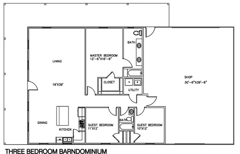
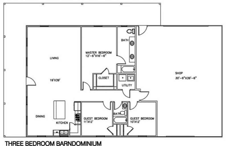
Three Bedrooms

Three Bedrooms, Two Bathrooms,

Leave a Comment

This site uses Akismet to reduce spam. Learn how your comment data is processed.