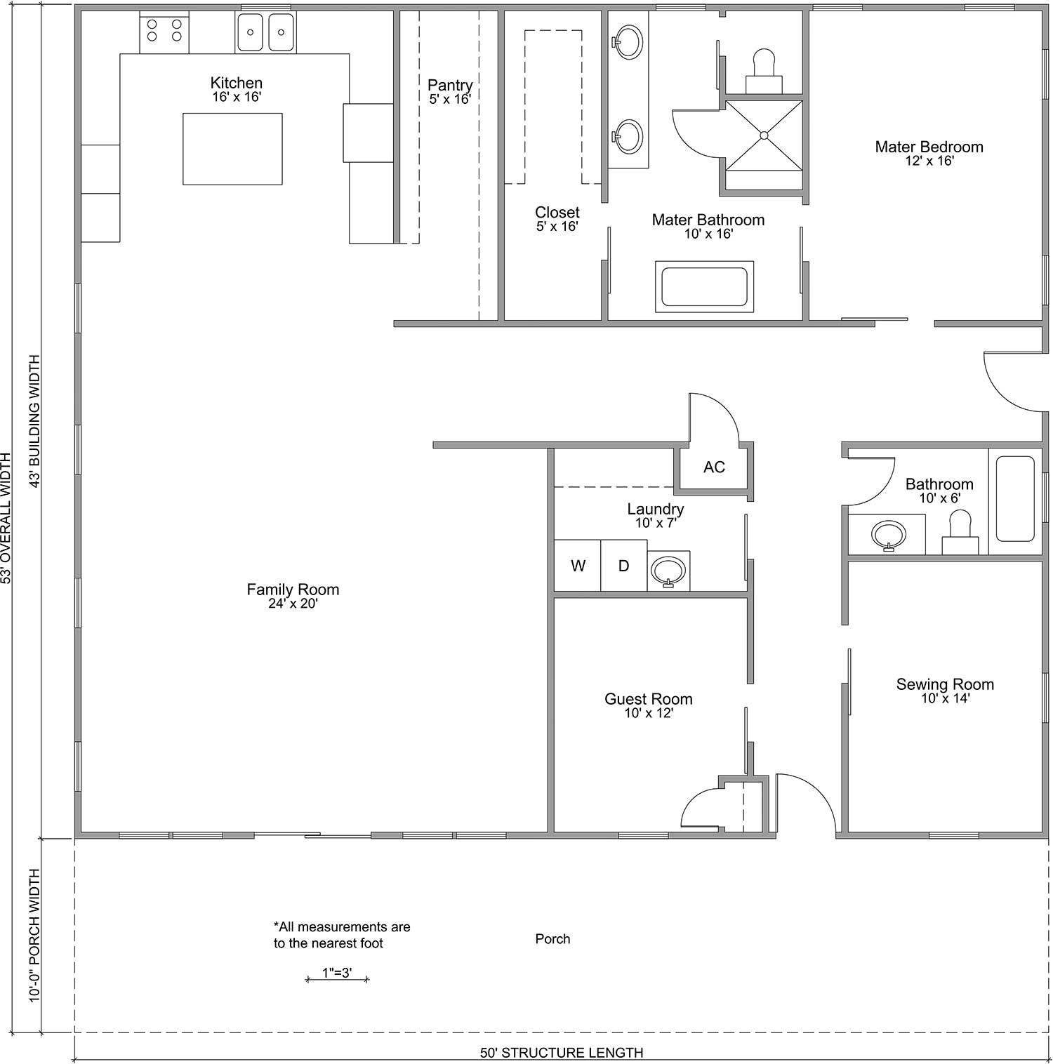
A Barndominium Floor Plan with a Sewing Room

Leave a Comment

This site uses Akismet to reduce spam. Learn how your comment data is processed.