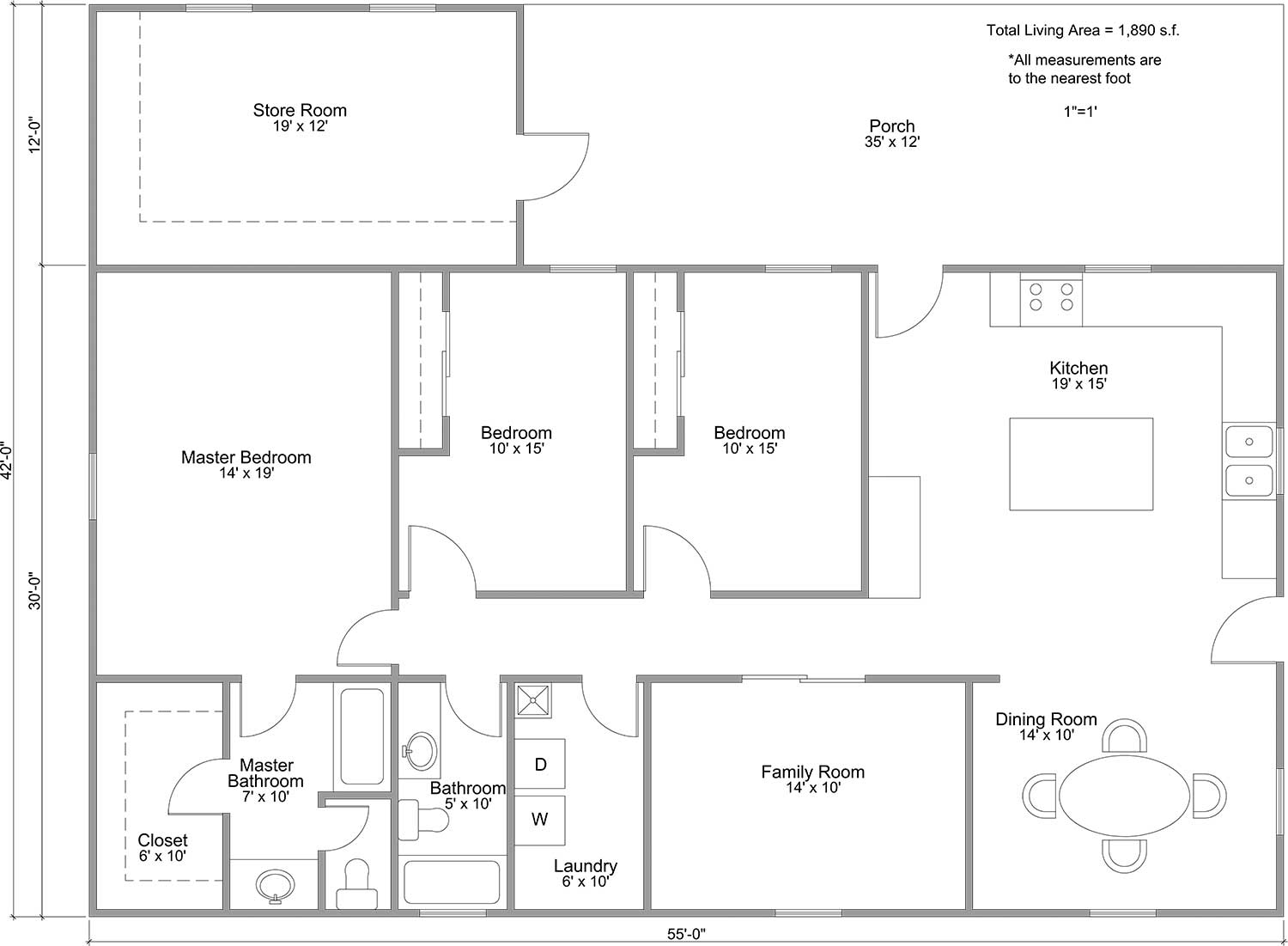
A 40×60 Barndominium Floor Plan with a Large Porch

Leave a Comment

This site uses Akismet to reduce spam. Learn how your comment data is processed.