Transforming a 40×60 barn into a barndominium is a great idea for you who want to live in an airy and spacious home. For this transformation, you need to find some interesting 40×60 barndominium floor plans first. After that, choose one of them which you like the most.
A barndominium is not only comfortable to live in, but it is also energy-efficient and requires less maintenance.
Moreover, a barndominium can be a great combination of a workshop and living space. Check these floor plans and see how you can transform a 40×60 barn into a comfy living space.
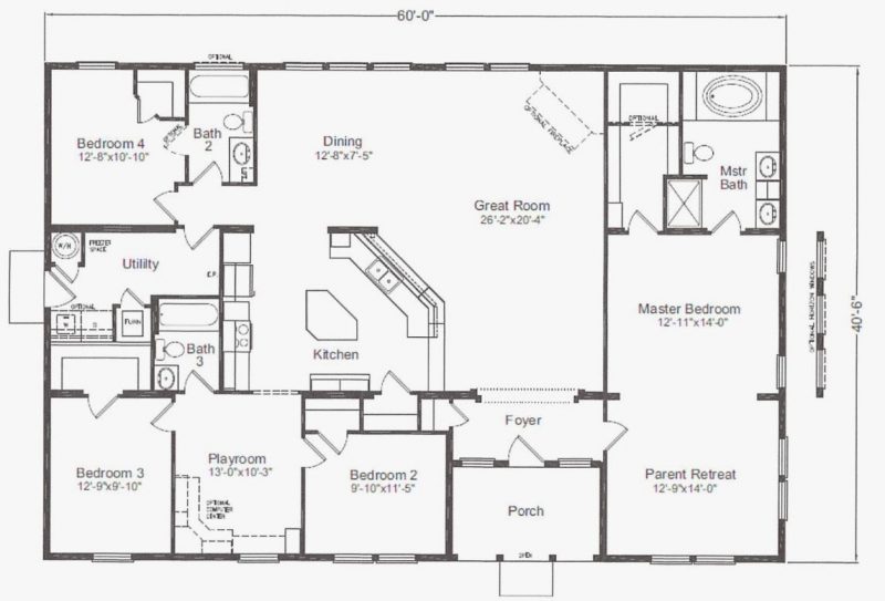
1. Best of the Best 40×60 Barndominium Floor Plans

This barndominium floor plan is simply among the best 40×60 barndominium floor plans. It offers excellent advantages for those living in it.
It has 4 bedrooms and all types of rooms that you need to live comfortably in it. It arranges the kitchen, dining room, and sitting room in an open concept.
This open-plan area is spacious and located in the middle of the home. The master bedroom in this barndominium is also very spacious and has a walking closet, master bathroom, and parent retreat. This floor plan also features a playing room, utility room, porch, and two smaller bathrooms.
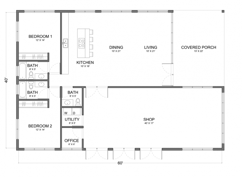
2. A 40×60 Barndominium Floor Plan with Shop

Many people have transformed their barn into something similar to a shophouse. A barndominium with a shop offers more comfort than the shop house does.
You can enjoy a spacious living space in it and at the same time operate a shop from home if you apply this barndominium floor plan.
The floor plan features a shop with the size of 40’x17’. It also features a small office and a utility room to support the operation of the shop.
In this floor plan, you can also find two bedrooms, and each of them has a bathroom in it, a kitchen, a dining room, a living room, and a large covered porch.
3. A 3 Bedroom Barndominium Floor Plan

This floor plan idea is one of the simple 40×60 Barndominium floor plans that is suitable for modern barndominium.
The front door opens to a spacious open-plan area of a kitchen, dining room, and living room. The size of this open-plan area is about 38’x21’.
On the other end of that area and next to the kitchen is a French window that opens to a small backyard. There are one master bedroom and two other bedrooms. And if you need one more bedroom, you can transform the study into a bedroom.
4. A Barndominium Floor Plan with a Large Sitting Room

This floor plan is actually for a larger barndominium. However, you can apply it for a 40×60 barndominium by removing the garage and the laundry room. In addition, you also need to make some adjustments on the size of certain rooms or porches.
This floor plan is perfect for you who want to have a barndominium with a large sitting room or great room. The size of the great room is 20’x18’. This room is in the same open-plan area with the dining area and kitchen.
The kitchen is also spacious, but you may need to adjust its size for your 40×60 barndominium. Next to the kitchen is an office and a large master bedroom that also features a master bathroom and two walking closets. There are two other bedrooms in this barndominium, and the size of each bedroom is 13’x13’.
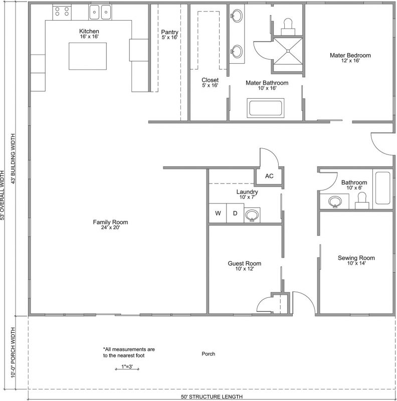
5. A Barndominium Floor Plan with a Sewing Room/Workshop

Many barndominium owners choose to add a workshop in their barndominium. If you want to do it too, you can adopt this floor plan. It is one of the 40×60 barndominium floor plans that features a workshop; in this case, it is a sewing room.
The floor plan of this barndominium features a very spacious family room. Its size is 24’x20’ so that you and your family can enjoy a great time in it.
This barndominium also has a large kitchen size 16’x16. Meanwhile, the size of the sewing room or workshop is 10’x14’. You can enlarge it if you need to.
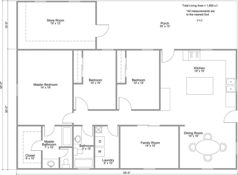
6. A 40×60 Barndominium Floor Plan with a Large Porch and Outdoor Storage

Do you love spending time relaxing on the back porch? If you do, you can adopt this barndominium floor plan.
Unlike the previous 40×60 barndominium floor plans, it does not feature an open concept. The family room is separated from the dining room and the kitchen.
The family room is not spacious, but the back porch is very spacious so that you can entertain your guests freely on the porch.
This barndominium also features a master bedroom, master bathroom, 2 bedrooms, a bathroom, a laundry room, and a storeroom, which you can transform into a workshop.
7. A Comfy 40×60 Barndominium, Perfect for Entertaining Guests

It is one of the 40×60 barndominium house plans that are perfect for you who love entertaining guests. It features a large family room, a great room, and a living room that are great for that particular purpose. It also has a large and comfortable master bedroom.
Other rooms you can find on this floor plan are a kitchen, utility room, dining room, and 2 bedrooms. The kitchen is also spacious and complete with a pantry.
8. Non-Open Concept Barndominium Floor Plan

This is another barndominium floor plan that is suitable for those who prefer a non-open concept. This barndominium is comfortable to live in with its large living room, dining room, nook, and kitchen. It also has a very spacious master bedroom.
Aside from the living spaces above, this floor plan also features a bathroom, laundry room, front porch, and 2 bedrooms. Since this floor plan is made for a 42’x50’ barndominium, you need to make some adjustments if you want to apply it.
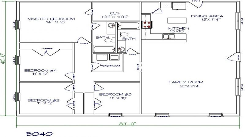
9. Basic 40×60 Barndominium House Plan

The floor plan of this barndominium is quite basic. It only features an extra-large family room, a kitchen, a dining area, 2 bathrooms, a washroom, and 4 bedrooms.
However, since the size of this barndominium plan is only 40’x50’, you still have free space for a laundry room, workshop, and garage. Moreover, don’t forget to add a porch so that you can have a great time outdoors.
10. A 40×60 Barndominium Floor Plan with Garage

This barndominium floor plan has a simple layout, but has no open-plan area. It features 4 bedrooms, and one of them is a master bedroom. It also has a living room, a garage, a kitchen, and a laundry room. However, it lacks a dining area.
When you are selecting one of the 40×60 barndominium floor plans above, it is essential to consider your space needs.
Not everyone needs a shop, a workshop, an office, or a garage. Therefore, make sure that you get all the rooms you need when transforming a barn into a barndominium.